Обяви За нас Контакти
Продава 2-СТАЕН
град София, с. Бистрица
196 000 €
383 342.68 лв.

(2 390 €, 4 674.43 лв./m2)
Цената е с включено ДДС
Коригирана в 9:00 на 10 ноември, 2025 год.
Обявата е посетена 517 пъти.
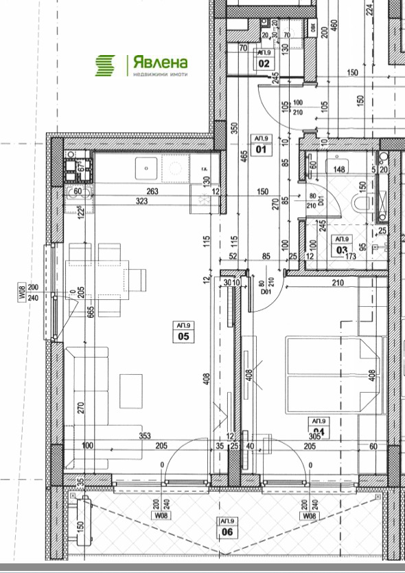
Площ:
82 m2
Етаж:
3-ти от 4
Газ:
ДА
Строителство:
Тухла, Ще бъде въведен в експлоатация 2026 г.

Описание на имота:


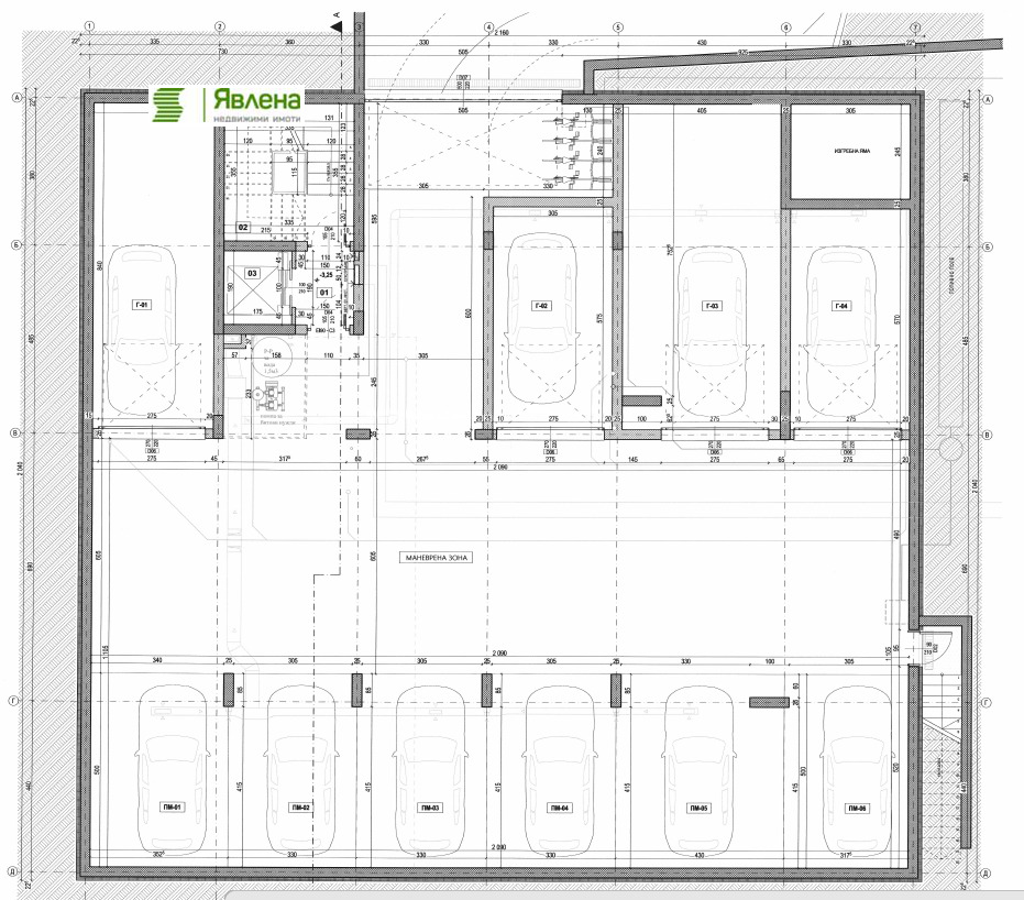
Явлена Изток предлага на вашето внимание просторен и слънчев двустаен апартамент с прилежаща тераса, в новострояща се бутикова сграда в с. Бистрица. Сградата се състои от три надземни етажа, един подпокривен и един подземен. Конструкцията е скелетно-безгредова, с вертикално носещи елементи от стоманобетонни колони. Проектирана е с висококачествена PVC дограма с дебелина на стъклопакет 44мм.. Строителство по съвременни технологии с внимание към всеки детайл и без компромис към качеството и влаганите материали. Площта на имота е 82 кв.м., разпределена както следва: просторен хол с трапезария и кухненска част, спалня, санитарен възел, складово помещение и голяма югозападна тераса. Налични са подземни парко-места и гаражи. Сградата се намира на много достъпно и комуникативно място в централната част на с. Бистрица, в близост до плажа, и основни пътни артерии. Сградата се очаква да бъде въведена в експоатация края на 2026г.
Виж всички обяви в yavlena_iztok.bazar.bg или тук
Особености
Тухла
С гараж
С паркинг
Контрол на достъпа
Охрана
Саниран
За контакт:
0892 516 171
Брокер:
Станислава Цветкова
0882222321, 02/4511827
Офис: Явлена Изток
Още оферти от брокера: Продава | Дава под наем | Купува | Наема
Агенция:
ЯВЛЕНА ИЗТОК
024511827
ЯВЛЕНА ИЗТОК logo
Медал за прослужено време
В imot.bg от 2002 г.
yavlena_iztok.imot.bg
Адрес:
област София, гр. София, гр. София, бул. Цариградско шосе 16, бл. 11
http://www.yavlena.com
ИЗПРАТИ ЗАПИТВАНЕ
ИЗПРАТИ ЗАПИТВАНЕТО

Продава 2-СТАЕН
град София, с. Бистрица
Обява: 1b175974149213542

196 000 €
383 342.68 лв.
(2 390 €, 4 674.43 лв./m2)

Цената е с включено ДДС
ЗАПАЗИ ОБЯВАТА

Местоположение: град София, с. Бистрица

Допълнителни данни за имотите в района и сравнение с други райони: Търсене в АРХИВ 2013 - 2025 г.











Добави/редактирай
вид имот и район
*Средните цени са определени чрез медиана стойност.